Categorías de proyectos

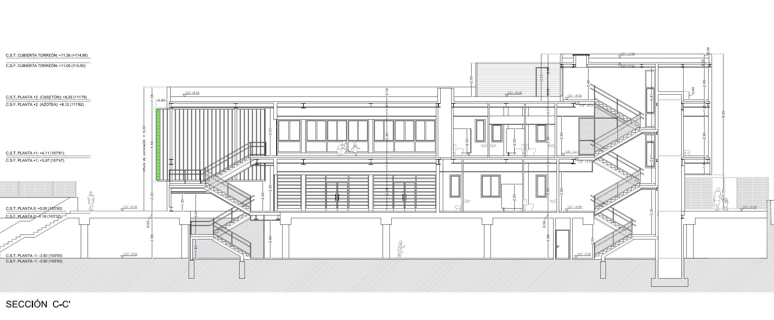
Colegio Sagrada Familia

Tipo:

Obra nueva

Ubicación:

Calle Oberón 6 -Madrid

Superficie:

2154 m2

Cliente

Hermanos Gabrelianos - Colegio Sagrada Familia

Fases

- P. Básico (2019)

- P. Ejecución (2019)

- Final de Obra (2020)

- Plazo de obra (6 meses)

Constructora

RUESMA

Aparejador

Sonia Antón

Estructura

EUTECA S.L.

Instalaciones

ESPROSA INGENIEROS CONSULTORES S.L.