Categorías de proyectos

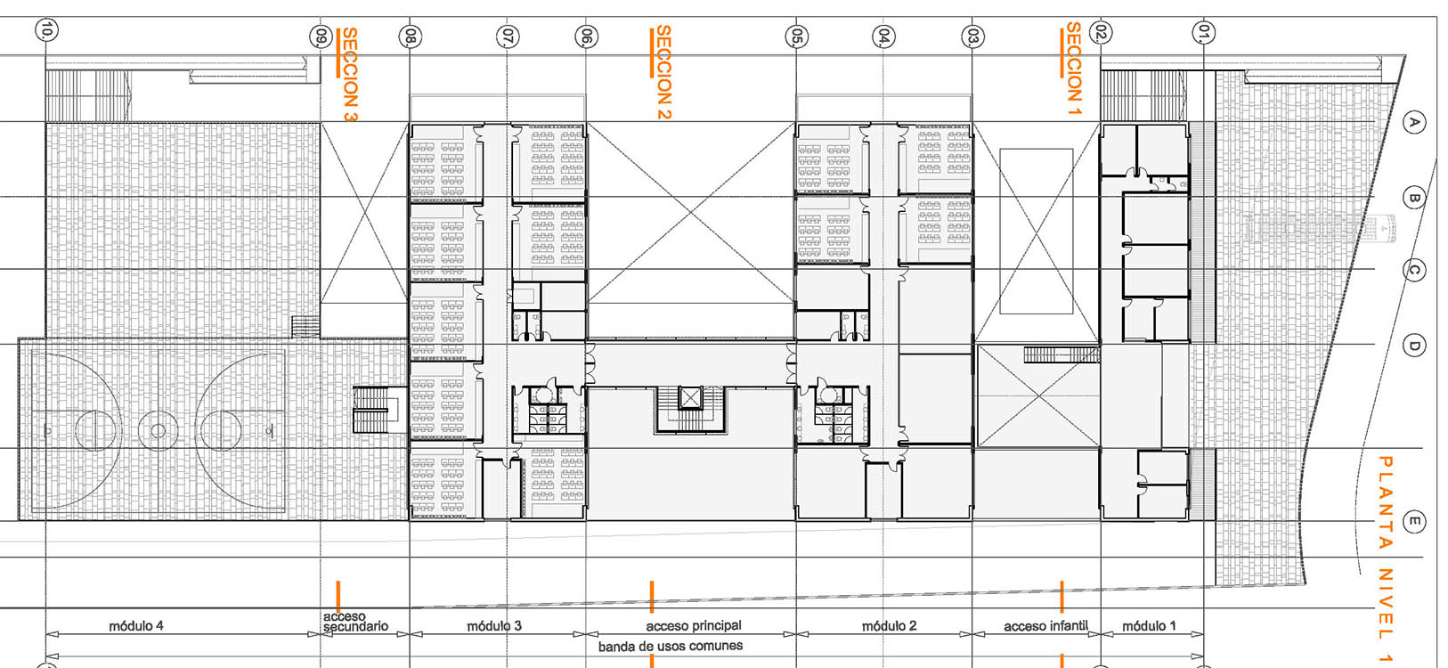
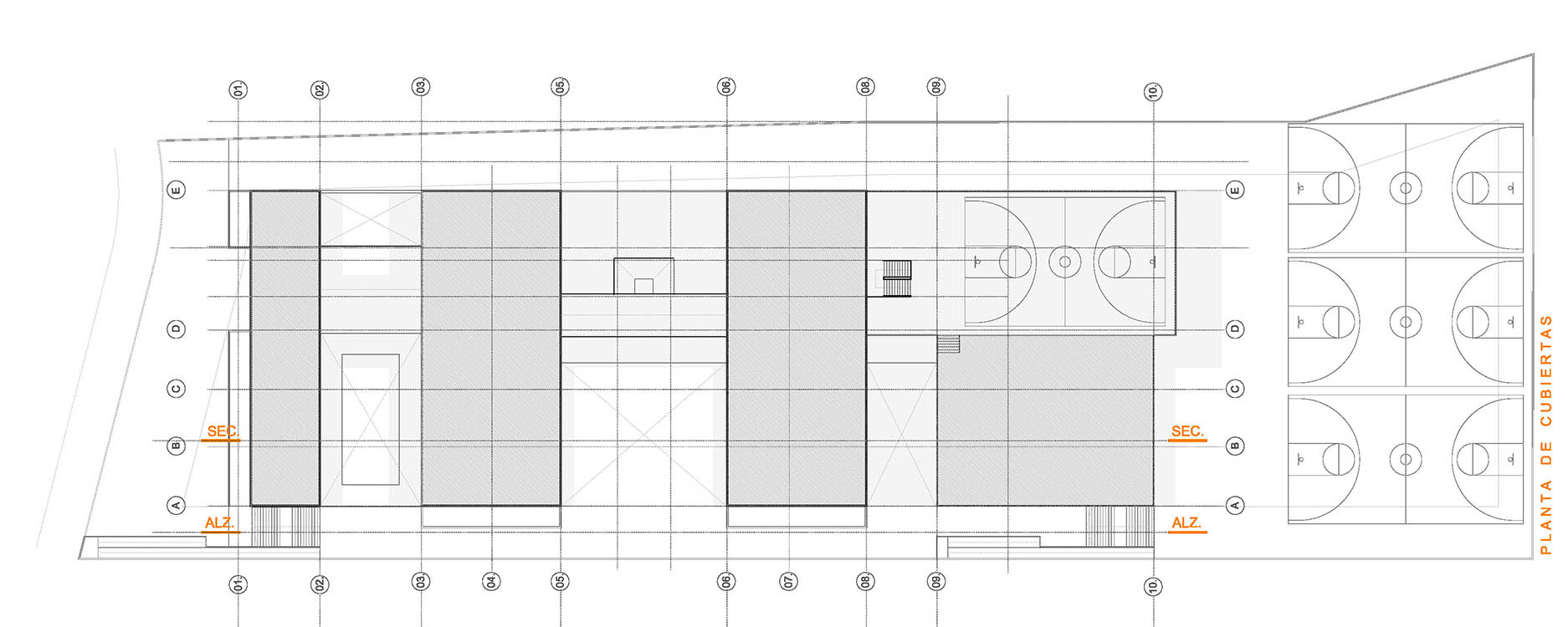
Colegio San Ignacio de Loyola I

Tipo:

Obra nueva

Ubicación:

Torrelodones - Madrid

Superficie:

9000 m2

Cliente

Arzobispado de Madrid

Fases

1º Premio concurso (2008)