Categorías de proyectos

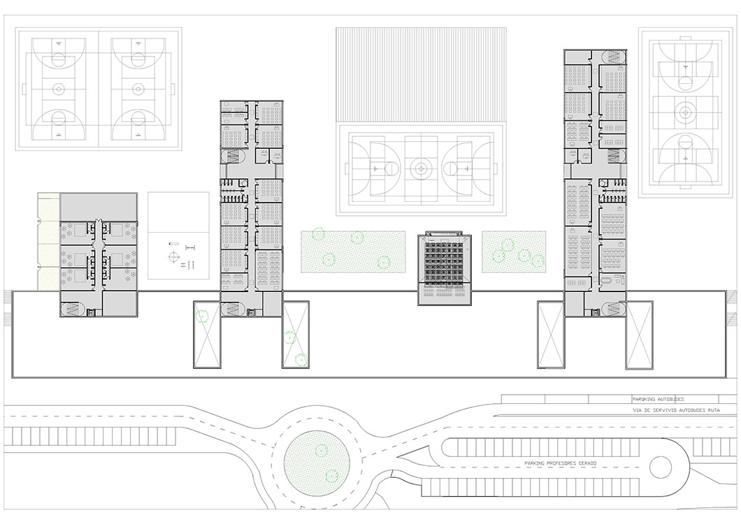
Colegio San Pablo CEU

Tipo:

Obra nueva

Ubicación:

Bormujos - Sevilla

Superficie:

9000 m2

Cliente

Fundación San Pablo Andalucía

Fases

2º Premio concurso (2010)