Categorías de proyectos

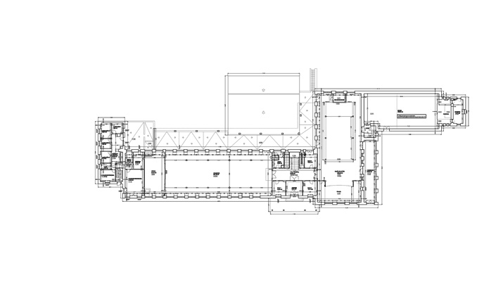
Colegio Seminario Menor de Getafe

Tipo:

Rehabilitación integral

Ubicación:

Rozas de Puerto Real - Madrid

Superficie:

100 m2

Cliente

Diócesis de Getafe

Fases

- P. Básico (2006)

- P. Ejecución (2007)

- Obras Parciales (2008,2009)

- Final de Obra (2009)

Constructora

Marodas

Aparejador

Enrique Medina Iglesias

Ramón Sánchez Hombre

Estructuras

Ceta2

Instalaciones

Esprosa Ingenieros Consultores S.L.