Categorías de proyectos

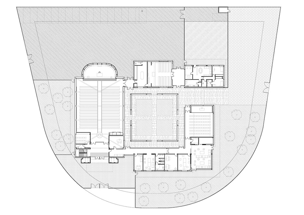
Parroquia San Carlos Borromeo

Tipo:

Obra nueva

Ubicación:

Villanueva de la Cañada - Madrid

Superficie:

1700 m2

Cliente

Arzobispado de Getafe

Fases

- P. Básico (2010)

- P. Ejecución (2010)

- Final de Obra (2011)

Plazos de obra

10 meses

Constructora

Cabbsa

Aparejador

Enrique Medina Iglesias

Ramón Sánchez Hombre

Estructuras

Euteca S.L.P.

Instalaciones

Esprosa Ingenieros Consultores S.L.