Categorías de proyectos

Parroquia Nª Sra de la Asunción

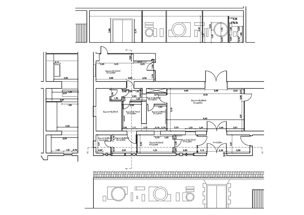
Tipo:

Rehabilitación integral

Ubicación:

Móstoles - Madrid

Superficie:

100 m2

Cliente

Diócesis de Getafe

Fases

- P. Básico y Ejecución (2007)

- Final de Obra (2007)