Categorías de proyectos

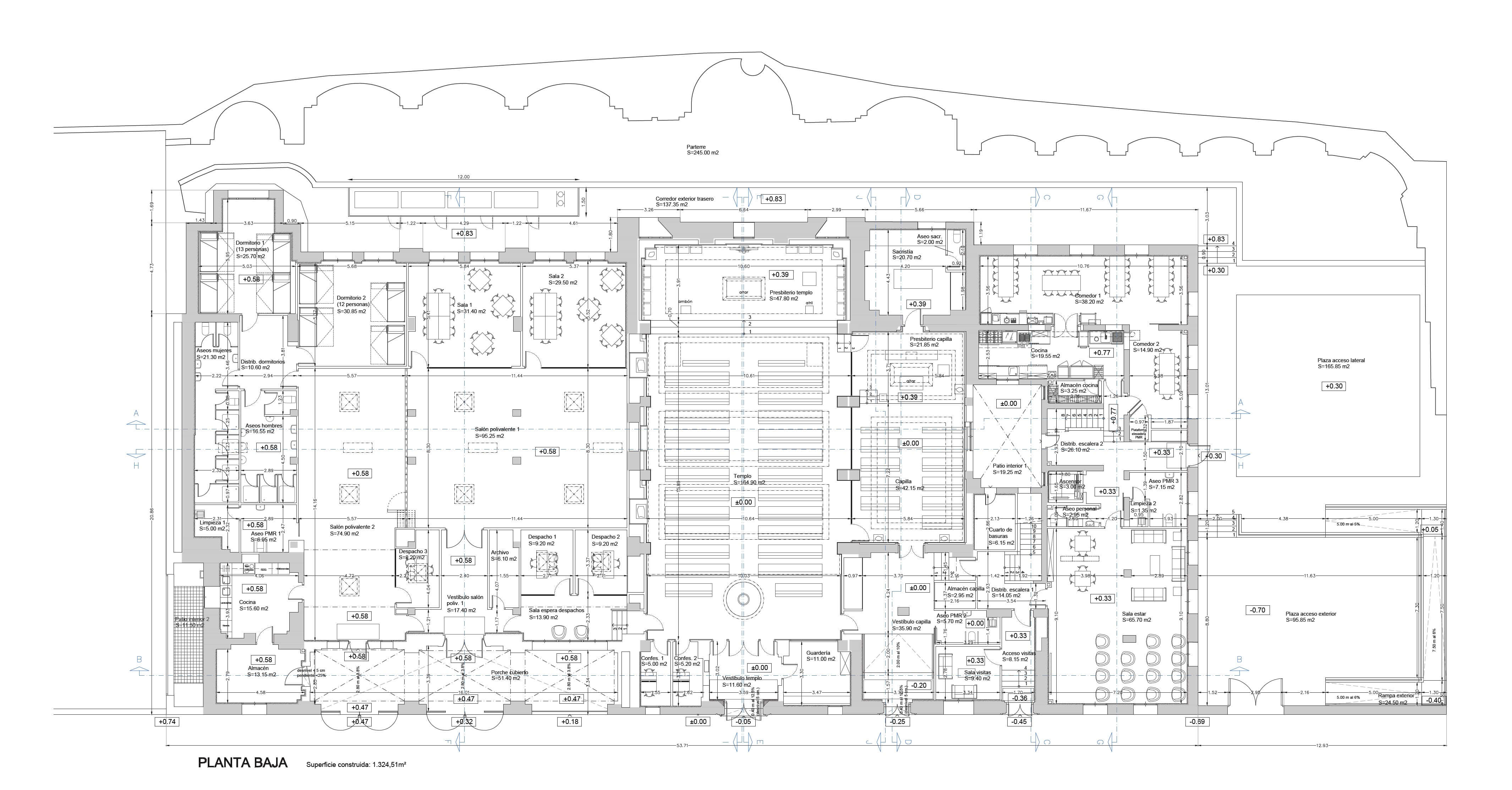
Reconversión de antigua Parroquia Santa María de la Cabeza en residencia del seminario y centro vocacional

Tipo:

Rehabilitación integral en edificio protegido

Ubicación:

Ronda de Segovia esquina Calle Segovia

Superficie:

2808 m2

Cliente

Arzobispado de Madrid

Fases

- P. Básico (2017)

- Plazo de obra (14 meses)

- P. Ejecución (2018)

- Final de Obra (2020)

Constructora

RUESMA

Aparejador

Sonia Antón

Estructuras

EUTECA S.L.

Instalaciones

ESPROSA INGENIEROS CONSULTORES S.L.