Categorías de proyectos

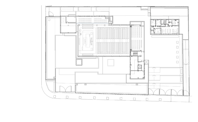
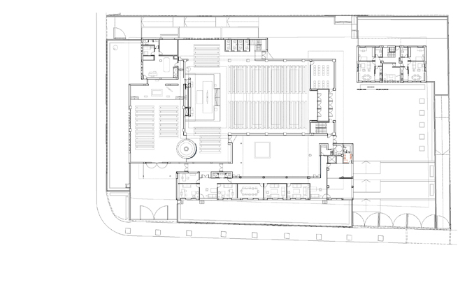
Parroquia Sto. Cristo de la Misericordia

Tipo:

Obra Nueva

Ubicación:

Boadilla del Monte - Madrid

Superficie:

2500 m2

Cliente:

Diócesis de Getafe

Fases:

- P. Básico (2003)

- P. Ejecución (2004)

- Final de Obra 1º Fase (2005)

- Final de Obra 2º Fase (2006)

Plazos de obra:

- 1º Fase: 18 meses

- 2º Fase: 9 meses

Constructora:

Quijano- Arenosa

Aparejador:

José Manuel Arenas

Estructuras:

Carlos Siegrist Fernández

Guillermo Siegrist Ridruejo

Instalaciones:

Montegar