Categorías de proyectos

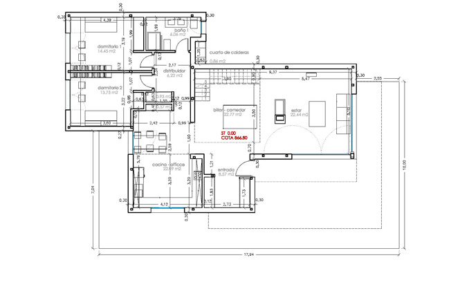
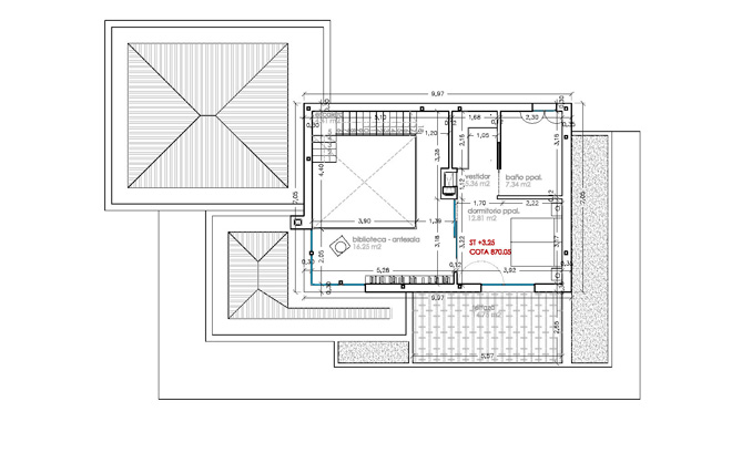
Vivienda unifamiliar en Galapagar

Tipo:

Obra Nueva

Ubicación:

Galapagar - Madrid

Superficie:

250 m2

Cliente

Particular

Fases

- P. Básico y Ejecución (2007)

- Final de Obra (2010)

Aparejador

Enrique Medina Iglesias

Ramón Sánchez Hombre

Estructuras

Euteca S.L.P.